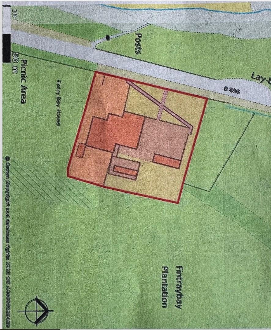
Fintry Bay, Millport, KA28 0HA Isle Of Cumbrae
FINTRY BAY PATIO CAFE RESTAURANT + ATTACHED TWO BEDROOMED HOUSE
Fintry Bay, KA28 0HA, Isle of Cumbrae.
PRICE: OFFERS OVER: £390,000
SOUGHT FOR HERITABLE PROPERTY; FIXTURES & FITTINGS WITHIN THE CAFÉ RESTAURANT; GOODWILL; STOCK IN TRADE WILL BE ADDITIONAL AT VALUATION. FURNITURE AND FURNISHINGS EXCLUDED WITHIN THE HOUSE.
FINTRY BAY PATIO CAFÉ RESTAURANT WITH ATTACHED TWO BEDROOM HOUSE , generous patio areas, double decker offering Air BnB development potential, various stores all situated on the west coast of the Island overlooking Fintry Bay and is up for sale offering a unique opportunity to acquire an established expansive business, create a lifestyle change on the popular Scottish Holiday Isle of Cumbrae off the West Coast of Scotland.
The Island of Great Cumbrae is in the Firth of Clyde, off the west coast of mainland Scotland, a ten-minute ferry ride from the Tourist Town of Largs. It is around one hour travel from major transport hubs of Glasgow Airport and Glasgow Central railway station and is accessible via a car and passenger ferry, a journey of eight minutes from Largs. Largs has a train station with regular service to Glasgow. The ferry service operates every 15 minutes (Summer) and 30 minutes (Winter). A bus to Millport Town meets the ferry.
